Mobile: 647 867 8804
Office: 905 488 2100
View More Properties
Contact Me
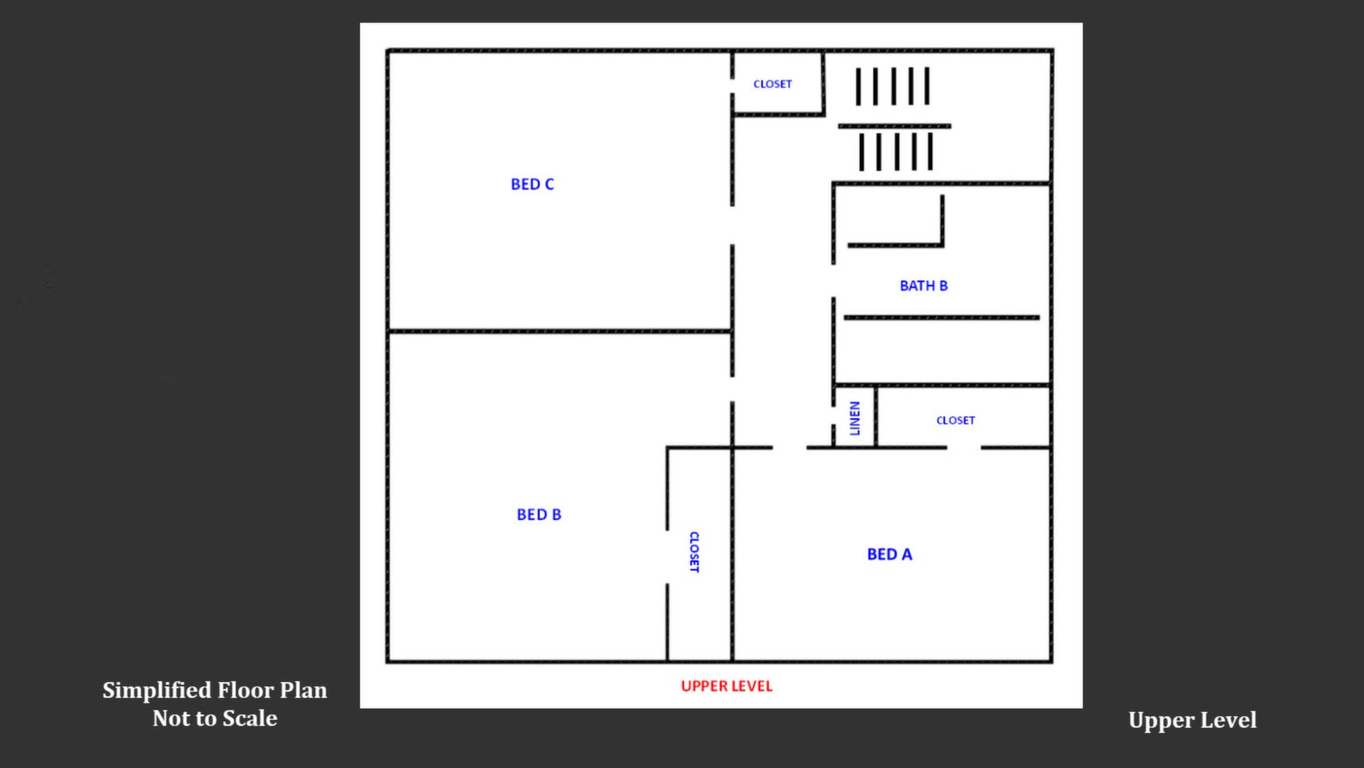
58 Festoon Pl. Brampton, Ontario L6T 3H9
Single Family Home
* Required
Please reconsider and re-enable Javascript on this website for a better viewing experience.